Trois projets mis en avant
Création de logements mixtes à Lille
Conception d'un comptoir d'hôtel
Architecture bioclimatique - résidence d'artiste
Création de logements mixtes à Lille
Axonométries
Plans 3D




Rendus 3D










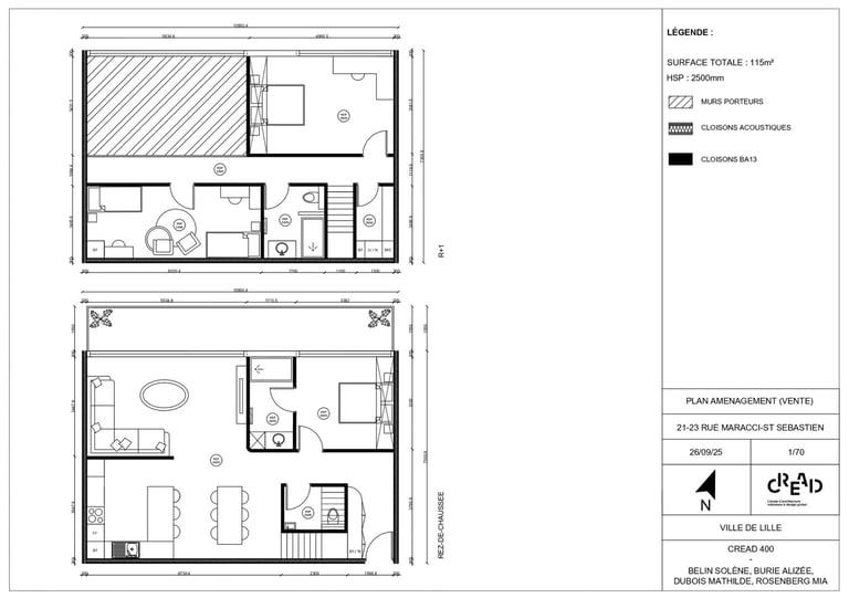
Dans le cadre d'un workshop, nous avons travaillé sur la reconversion d'un ancien site scolaire situé à Lille, destiné à accueillir un nouvel ensemble résidentiel mixte.
Le projet consiste en la conception d'un bâtiment R+2 intégrant différents types d'habitat afin de favoriser la mixité : logements sociaux, habitat étudiant partagé et logements mis à la vente.
Au sein du groupe, j'ai travaillé plus particulièrement sur la conception des logements mis à la vente. L'objectif était de proposer un logement familial d'environ 110 m² pour cinq personnes, en réfléchissant à une organisation des espaces à la fois fonctionnelle, confortable et adaptée au quotidien des habitants.




Plan technique


Conception d'un comptoir d'hôtel
Plans techniques
Planche matériaux / Meuble 3D




Rendus 3D










J’ai travaillé sur la conception d’un comptoir de réception pour un hôtel, pensé à la fois pour l’accueil des clients et pour le confort de travail du réceptionniste.
L’objectif était de créer un meuble à la fois fonctionnel, esthétique et accessible, en intégrant notamment une partie adaptée aux personnes à mobilité réduite (PMR). Le projet s’articule autour de plusieurs modules de rangement et d’un plateau principal aux lignes courbes, apportant douceur et fluidité à l’espace d’accueil.
Le choix des matériaux participe également à l’identité du meuble : placage bois, contreplaqué cintrable, résine époxy pour le plateau, et une plinthe en zellige qui vient apporter une touche de caractère et de texture.
Architecture bioclimatique - résidence d'artiste








Conception d’une résidence pour artiste, pensée selon les principes de l’architecture bioclimatique.
C’était la première fois que je réalisais un projet intégrant une approche bioclimatique, avec pour objectif de concevoir un bâtiment économe en énergie et respectueux de son environnement, en s’appuyant sur les ressources naturelles du site : soleil, vent, végétation et eau.
Le projet se situe au nord du lac du Héron à Villeneuve-d’Ascq, dans un environnement naturel composé de prairies, de boisements et de plans d’eau. L’implantation du bâtiment a été réfléchie afin de profiter des apports solaires au sud, tout en se protégeant des vents dominants venant de l’ouest et du nord-ouest.
Plusieurs choix techniques ont été intégrés pour améliorer la performance environnementale du bâtiment :
isolation performante (laine de bois)
menuiseries bois/alu triple vitrage
panneaux photovoltaïques orientés plein sud
récupération des eaux de pluie
ventilation double flux et ventilation naturelle
chauffage d’appoint par poêle à granulés.


